BRIDGE ROAD, NORTH EVINGTON, LEICESTER For Sale For Commercial

BRIDGE ROAD, NORTH EVINGTON
Offers over £1,800,000.00
24000 sqft
  • Area 24000 sqft
  • Rooms 0
  • Bedrooms 0
  • Bathrooms 0

Description

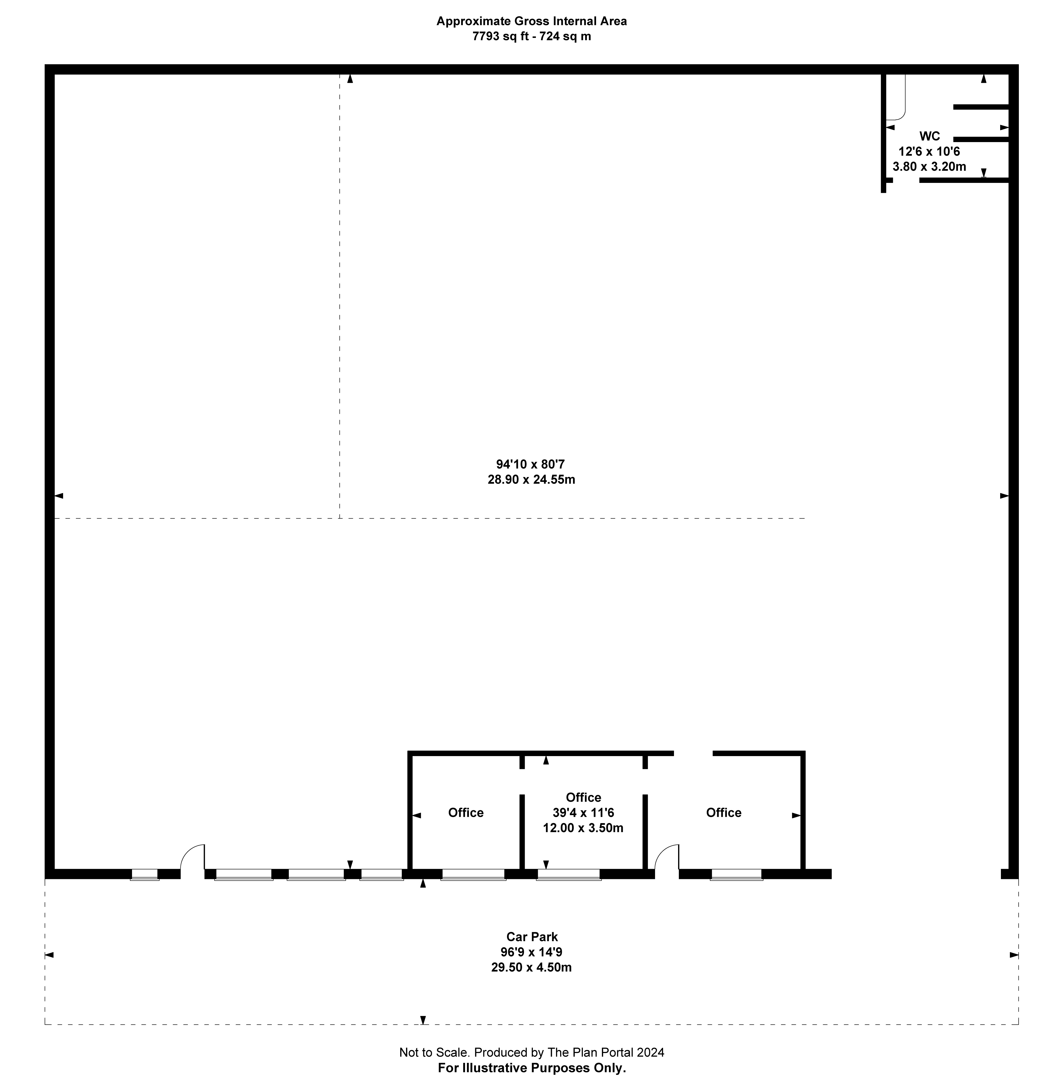
Leo Properties are delighted to present this 3 storey freehold commercial unit approximately 24,000 SQFT currently used for manufacturing kitchen tops, garments and storage purposes. The commercial property is within prime location and good catchment area of local labour/ workforce. The property is located in the area of North Evington off Green Lane Road, has potential to convert to Flats/Offices/Shops or retail units subject to planning permission. The Unit is currently used as warehouse purposes and is leased to businesses. In brief there are two entrances, lift access, storage, office space, ladies and gents facilities. The front of the property is good attraction for commercial units and residential development.

There is high demand in this area and viewing is highly recommended to appreciate the potential of this commercial property. We have not carried out a structural survey and the services, appliances and specific fittings have not been tested.

Show More

Features

  • Approx 24000SQFT
  • Freehold
  • 3 Storey unit
  • Entrance
  • Lifts
  • Office
  • With floor plan
  • Good catchment area
  • North Evington
  • Please contact a member of the team to arrange viewing

Location